ĐƠN GIÁ THIẾT KẾ NHÀ

ĐƠN GIÁ THIẾT KẾ NHÀ

Ngày đăng: 15/05/2023 01:32 PM

    ĐƠN GIÁ THIẾT KẾ XÂY DỰNG NHÀ PHỐ, BIỆT THỰ NĂM 2023

    Khách hàng đang cần tìm một đơn vị chuyên thiết kế Nhà phố, Biệt thự tại TP.HCM có đủ năng lực, chuyên môn giúp đưa ra các giải pháp thiết kế & thi công hợp lý. Giải đáp các thắc mắc liên quan đến pháp lý xây dựng củng như chuẩn bị hồ sơ xin phép và hỗ trợ giấy phép xây dựng cho Khách hàng ?. Hãy yên tâm khi Quý khách lựa chọn Xây Dựng Sơn Bình - tự hào là đơn vị hàng đầu chuyên thiết kế, thi công các công trình Nhà Phố và Biệt Thự tại TP.HCM .

    Thiết kế nhà không chỉ là sự kết hợp nhu cầu của chủ đầu tư về các mặt: Kiểu kiến trúc, công năng sử dụng, về phong thủy, cách bố trí công năng hợp lý cùng với sự tư vấn của các kiến trúc sư. Thiết kế nhà còn thể hiện đầy đủ các mong muốn của chủ nhân ngôi nhà ra giấy. Nó thể hiện lối sống, quan điểm của chủ nhà về kiến trúc. Thiết kế nhà liên quan đến toàn bộ giá trị thẩm mỹ của không gian nhà, thể hiện khả năng sáng tạo, kiến thức về mỹ thuật của các kiến trúc sư.

    Dịch vụ thiết kế nhà của Xây Dựng Sơn Bình bao gồm:

    • Thiết kế kiến trúc.
    • Thiết kế kết cấu.
    • Thiết kế hệ thống điện nước.
    • Triển khai hồ sơ thi công.
    • Thiết kế nội thất, ngoại thất 3D.
    • Thi công nội thất.

    Dưới đây là chi tiết về đơn giá thiết kế  nhà phố, nhà biệt thự Xây Dựng Sơn Bình gửi đến Quý Khách hàng:

    Gói thiết kế nhà phố, biệt thự cơ bản

    ĐƠN GIÁ THIẾT KẾ NHÀ GÓI CƠ BẢN

    ĐỐI VỚI NHÀ PHỐ

    STT

    Tổng diện tích sàn xây dựng

    Đơn giá thiết kế nhà

    1

    Nhỏ hơn 140m2

    15.000.000đ/bộ

    2

    Từ 150m2 – 220m2

    90.000đ/m2

    3

    Từ 220m2 – 400m2

    70.000đ/m2

    ĐỐI VỚI NHÀ BIỆT THỰ

    4

    Nhỏ hơn 140m2

    25.000.000đ/bộ

    5

    Từ 150m2 – 220m2

    150.000đ/m2

    6

    Từ 220m2 – 400m2

    130.000đ/m2

     

    Gói thiết kế nhà phố, biệt thự cao cấp

    ĐƠN GIÁ THIẾT KẾ NHÀ GÓI CAO CẤP

    ĐỐI VỚI NHÀ PHỐ

    STT

    Tổng diện tích sàn xây dựng

    Đơn giá thiết kế nhà

    1

    Nhỏ hơn 140m2

    25.000.000đ/bộ

    2

    Từ 150m2 – 220m2

    150.000đ/m2

    3

    Từ 220m2 – 400m2

    130.000đ/m2

    ĐỐI VỚI NHÀ BIỆT THỰ

    4

    Nhỏ hơn 140m2

    35.000.000đ/bộ

    5

    Từ 150m2 – 220m2

    190.000đ/m2

    6

    Từ 220m2 – 400m2

    170.000đ/m2

     

    Lưu ý: Đơn giá trên chưa bao gồm thuế giá trị gia tăng (VAT).

     

    1. Những phần cần có trong một bộ hồ sơ thiết kế nhà

    a. Phần kiến trúc

    • Tổng mặt bằng ngôi nhà, thể hiện vị trí của công trình trên khu đất.
    • Mặt bằng bố trí nội thất vật dụng các tầng thể hiện đày đủ vị trí các thiết bị vệ sinh cho đến thiết bị nội thất: Gường, bàn ghế, lavabo, bồn cầu …v.v.
    • Mặt bằng triển khai các tầng thể hiện đầy đủ kích thước mọi vị trí để tiện cho việc thi công.
    • Mặt bằng lát sàn các tầng thể hiện các vị trí được lát bằng vật liệu gì: Gạch, gỗ, đá. Thể hiện điểm mốc của viên gạch đầu tiên, thể hiện độ dốc thoát nước trong nhà vệ sinh về phiễu thu sàn.
    • Mặt bằng thiết kế vị trí trần thạch cao, cao độ trần thạch cao, kiểu cách thiết kế.
    • Mặt đứng trước công trình bản vẽ 2D xuất phát từ bản vẽ phối cảnh 3D, thể hiện rõ kích thước, vật liệu, gạch đá trang trí, sơn nước, các joint, vị trí phào chỉ …v.v.
    • Mặt cắt thể hiện các tầng từ trên xuống dưới, thể hiện những điểm khuất mà các bản vẽ mặt bằng không thể hiện được.
    • Các bản vẽ chi tiết cấu tạo, thường được phóng to thể hiện kích thước, vật liệu, cụ thể, chi tiết mặt tiền, mặt bên hông, những vị trí quan trọng mà bản vẽ mặt đứng chưa thể hiện được.
    • Các bản vẽ chi tiết cầu thang như: Kích thước bậc thang, vật liệu hoàn thiện, lan can cầu thang …v.v.
    • Các bản vẽ mặt cắt nhà vệ sinh, chi tiết thiết bị vệ sinh, chậu rửa, phễu thu sàn.
    • Các bản vẽ chi tiết cửa, kích thước cửa, vị trí cửa, vật liệu cửa, số lượng …v.v.
    •  

    D:\0. CÔNG TY SƠN BÌNH\THIẾT KẾ WEB\BÀI VIẾT\BÀI ĐĂNG THIẾT KẾ\New folder\final\01.jpg01

     

    Bản vẽ thiết kế nhà phố rõ ràng và chi tiết

     


    D:\0. CÔNG TY SƠN BÌNH\THIẾT KẾ WEB\BÀI VIẾT\BÀI ĐĂNG THIẾT KẾ\New folder\final\02.jpg02

     

    Hồ sơ thiết kế được phân tách thành từng tầng riêng biệt để quan lý và thi công

     


    D:\0. CÔNG TY SƠN BÌNH\THIẾT KẾ WEB\BÀI VIẾT\BÀI ĐĂNG THIẾT KẾ\New folder\final\03.jpg03

     

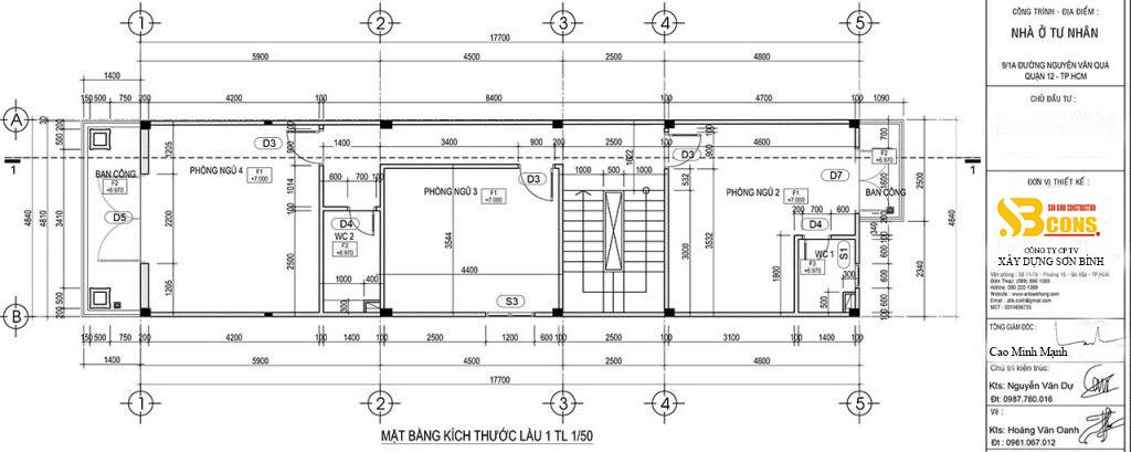
    Mặt bằng lầu 1 nhà phố 4 tầng 4.8x18m

     


    D:\0. CÔNG TY SƠN BÌNH\THIẾT KẾ WEB\BÀI VIẾT\BÀI ĐĂNG THIẾT KẾ\New folder\final\04.jpg04

     

    Mặt bằng sân thượng được bố trí tinh tế và sáng tạo đầy đủ công năng sử dụng

     


    D:\0. CÔNG TY SƠN BÌNH\THIẾT KẾ WEB\BÀI VIẾT\BÀI ĐĂNG THIẾT KẾ\New folder\final\05.jpg05

     

    Mặt bằng mái bê tông cốt thép

     


    D:\0. CÔNG TY SƠN BÌNH\THIẾT KẾ WEB\BÀI VIẾT\BÀI ĐĂNG THIẾT KẾ\New folder\final\06.jpg06

     

    Mặt cắt dọc nhà từ tầng trệt lên mái nhà – bản vẽ này giúp chủ đầu tư dễ hình dung về ngôi nhà của mình hơn

     


    D:\0. CÔNG TY SƠN BÌNH\THIẾT KẾ WEB\BÀI VIẾT\BÀI ĐĂNG THIẾT KẾ\New folder\final\07.jpg07

     

    Mặt bằng & và mặt cắt cầu thang được thiết kế chi tiết thuận lợi cho việc thi công và hoàn thiện nhà phố.

    b. Thiết kế kết cấu

    Khai triển kết cấu: Tính toán sức chịu tải của cấu kiện móng, cột, dầm, sàn chọn tiết diện và bố trí sắt thép chịu lực cho từng cấu kiện như: móng, cột, dầm, sàn, cầu thang, ô văng …v.v.

    • Mặt bằng móng, chi tiết cấu tạo, mặt cắt móng.
    • Mặt bằng chi tiết cột, thể hiện chi tiết các thanh thép.
    • Mặt bằng, mặt cắt thang bộ thể hiện chi tiết các thanh thép.
    • Mặt bằng định vị dầm, thể hiện chi tiết các thanh thép.
    • Mặt bằng chi tiết cấu tạo thép sàn các tầng, và chi tiết các thanh thép.

    D:\0. CÔNG TY SƠN BÌNH\THIẾT KẾ WEB\BÀI VIẾT\BÀI ĐĂNG THIẾT KẾ\New folder\final\08.jpg08

     

    Mặt bằng móng và giằng móng

     

    D:\0. CÔNG TY SƠN BÌNH\THIẾT KẾ WEB\BÀI VIẾT\BÀI ĐĂNG THIẾT KẾ\New folder\final\09.jpg09

     

    Bản vẽ thể hiện tiết diện cột từng tầng và chi tiết Thép Việt Nhật

     

    D:\0. CÔNG TY SƠN BÌNH\THIẾT KẾ WEB\BÀI VIẾT\BÀI ĐĂNG THIẾT KẾ\New folder\final\10.jpg10

     

    Mặt bằng dầm sàn lầu 1 và lầu 2

     

    c. Phần thiết kế hệ thống điện

    Khai triển M.E: Dựa vào các bản vẽ kiến trúc và nhu cầu ở sinh hoạt của chủ đầu tư mà bố trí hệ thống chiếu sáng, điện sử dụng, hệ thống cấp nước, thoát nước, hệ thông internet, tivi, camera an ninh …v.v.

    • Sơ đồ nguyên lý cấp điện cho toàn bộ ngôi nhà.
    • Mặt bằng chiếu sáng các tầng, các loại thiết bị chiếu sáng.
    • Mặt bằng ổ cắm các tầng, thể hiện vị trí, cao độ, chủng loại các loại ở cắm.
    • Mặt bằng đường internet, truyền hình cáp, điện thoại, camera.
    • Các chi tiết cấu tạo phần điện như lắp đặt thiết bị.
    • Bảng thống kế vật tư.

     

    D:\0. CÔNG TY SƠN BÌNH\THIẾT KẾ WEB\BÀI VIẾT\BÀI ĐĂNG THIẾT KẾ\New folder\final\11.jpg11

     

    Sơ đồ nguyên lý cấp điện các tầng nhà phố

     

    d. Thiết kế hệ thống nước

    • Sơ đồ nguyên lý cấp nước và thoát nước cho ngôi nhà.
    • Mặt bằng cấp thoát nước tổng thể các tầng, các thiết bị cần thoát nước và kích thước ống thoát.
    • Mặt bằng cấp nước các tầng, và kích thước các ống cấp dành cho các thiết bị.
    • Chi tiết cấp nước và thoát nước nhà vệ sinh.
    • Bảng thống kê vật tư.

     

    D:\0. CÔNG TY SƠN BÌNH\THIẾT KẾ WEB\BÀI VIẾT\BÀI ĐĂNG THIẾT KẾ\New folder\final\12.jpg12

     

    Sơ đồ nguyên lý cấp nước – theo nguyên lý này thì nước sẽ được phân bố đều cho cấc tầng, không xảy ra tình trạng tầng có nước tầng không có nước.

     

     

    D:\0. CÔNG TY SƠN BÌNH\THIẾT KẾ WEB\BÀI VIẾT\BÀI ĐĂNG THIẾT KẾ\New folder\final\13.jpg13

     

    Hệ thống thoát nước và chống mùi hôi thối

     

    e. Phối cảnh mặt tiền

    • Bản vẽ phối cảnh mặt tiền 3D (màu sắc, ánh sáng, vật liệu).
    • Bố cục đường nét, phong cách kiến trúc của mặt tiền ngôi nhà.
    • Các chi tiết hoa văn chỉ,  đường Joint, chiều cao tầng, hình dáng kích thước cửa, loại vật liệu dành cho lan can.

     

    D:\0. CÔNG TY SƠN BÌNH\THIẾT KẾ WEB\BÀI VIẾT\BÀI ĐĂNG THIẾT KẾ\New folder\final\PC3.jpgPC3

     

    Phối cảnh mặt tiền của một ngôi nhà được Xây Dựng Sơn Bình thiết kế.

     

    2. Hình thức đóng tập và các công tác khác trong thiết kế nhà phố.

    • Hồ sơ thiết kế nhà được in ra 02 bộ khổ giấy A3, để thuận tiện cho việc thi công.
    • Một (01) bộ sẽ được lưu trữ tại công ty.
    • Tư vấn phong thủy cho chủ đầu tư và tư vấn các quy định cấp phép xây dựng.

     

    D:\0. CÔNG TY SƠN BÌNH\THIẾT KẾ WEB\BÀI VIẾT\BÀI ĐĂNG THIẾT KẾ\New folder\final\Bia.jpgBia

     

    Bìa hồ sơ kỹ thuật được đóng thành bộ sau khi thiết kế xong – báo giá thiết kế nhà

     

    3. Những lưu ý khi chủ đầu tư nhận báo giá thiết kế nhà phố.

    Những đơn giá thiết kế nhà phố và nhà biệt thự trên thường áp dụng cho các thiết kế nhà phố có tính đơn giản thông thường, phổ biến. Đối với các mẫu thiết kế nhà phố, nhà biệt thự, thiết kế nhà xưởng, thiết kế khách sạn, thiết kế nội thất văn phòng có tính chất phức tạp hơn, Quý khách hàng hãy liên hệ trực tiếp với bộ phận tư vấn và báo giá của Công ty Cổ Phần Tư Vấn Xây Dựng Sơn Bình  hoặc truy cập qua website: xaydungsonbinh.com hoặc liên hệ đến số Hotline: 0903 685 536 để được tư vấn và hỗ trợ trực tiếp.

    a. Điều kiện thực hiện Hợp đồng thiết kế nhà.

    Nếu hai (02) bên đã thống nhất được đơn giá thiết kế nhà rõ ràng, sẽ tiến hành ký kết hợp đồng thiết kế.

    Sau khi khi kí hợp đồng, công ty sẽ phác thảo phương án thiết kế trên máy tính cho khách hàng xem trước, đồng thời khách hàng sẽ thanh toán tiền đặt cọc trước khi công ty lên phương án trên máy tính.

    b. Số tiền đặt cọc được quy định trong đơn giá thiết kế nhà phố.

    • Thiết kế nhà phố: 3.000.000đ
    • Thiết kế biệt thự: 7.000.000đ
    • Thiết kế khách sạn: 10.000.000đ
    • Thiết kế văn phòng: 5.000.000đ
    • Thiết kế nhà xưởng: 10.000.000đ

    c. Phương thức thanh toán chi phí thiết kế nhà chia làm 3 giai đoạn.

    Đợt 1: Tạm ứng 30% giá trị hợp đồng sau khi kí kết hợp đồng và đã đồng ý phương án thiết kế trên máy tính.

    Đợt 2: Tạm ứng 40% giá trị hợp đồng sau khi hoàn tất mặt bằng kiến trúc cơ bản và kết cấu cơ bản.

    Đợt 3: Thanh toán 30% còn lại sau khi hoàn tất và bàn giao thiết kế.

    Lưu ý: Xây Dựng Sơn Bình sẽ không hoàn lại số tiền đặt cọc nếu quá 3 phương án mà khách hàng vẫn không chấp nhận.

    Khi khách hàng ký kết hợp đồng thiết kế nhà với chúng tôi thì số tiền đặt cọc sẽ được trừ vào giá trị của hợp đồng. Chúng tôi chân thành mong muốn được phục vụ Quý khách một cách chu đáo.

    4. Quy trình thiết kế và thời gian thiết kế nhà phố và nhà biệt thự.

    Bước 1: Thiết kế mặt bằng và phối cảnh mặt tiền

    • Thời gian theo sự phối hợp giữa Chủ đầu tư (CĐT) và Kiến trúc sư (KTS).
    • Phương án bố trí mặt bằng cũng như công năng sử dụng của từng tầng và thiết kế phối cảnh mặt tiền phù hợp với nhu cầu của khách hàng. Phù hợp với thực tế công trình rất quan trọng ảnh hưởng đến toàn bộ công tác thiết kế sau này. Vì vậy, CĐT và KTS nếu không thật sư kỹ lưỡng trong giai đoạn này thì phải chỉnh sửa lại gần như toàn bộ hồ sơ nếu như thay đổi sẽ ảnh hưởng đến rất nhiều thời gian và công sức của 02 bên.

    Bước 2: Triển khai chi tiết hồ sơ thiết kế

    • Thời gian thực hiện: 20 ngày
    • Sau khi thống nhất bản vẽ mặt bằng+ phối cảnh mặt tiền, Xây Dựng Sơn Bình sẽ triển khai toàn bộ chi tiết của hồ sơ thiết kế và bàn giao hồ sơ đợt 1 cho CĐT (Khối lượng thực hiện gần 90% theo hợp đồng).

    Bước 3: Chủ đầu tư chỉnh sửa hồ sơ thiết kế nhà

    • Thời gian: Tùy theo thời gian chủ đầu tư sắp xếp.
    • Sau khi nhận hồ sơ đợt 1, CĐT xem xét toàn bộ hồ sơ thiết kế và phản hồi lại cho các kiến trúc sư của Xây Dựng Sơn Bình để tiến hành chỉnh sửa (nếu có).

    Bước 4: Hoàn thiện hồ sơ thiết kế nhà và bàn giao hồ sơ thiết kế nhà cho Chủ Đầu Tư.

    • Thời gian thực hiện: 05 ngày.
    • Kết thúc các khâu thiết kế và tiến hành xuất hồ sơ thiết kế
    • Sau khi nhận lại hồ sơ đợt 1 và các phản hồi của CĐT (nếu có), Xây Dựng Sơn Bình sẽ tiến hành chỉnh sửa các chi tiết theo yêu cầu của CĐT và bàn giao chính thức hồ sơ thiết kế cho CĐT.
    • Chủ trì thiết kế xem xét kiểm tra và chỉnh sữa sai xót, xung đột giữa các khâu thiết kế => hoàn thiện hồ sơ thiết kế.
    • Đây là khâu cực kỳ quan trọng và quyết định tính hiệu quả của một hồ sơ thiết kế bởi ở đó hồ sơ được thẩm định với nhiều thành phần gồm: chủ đầu tư, bộ phận kiểm tra chất lượng QA, QC, bộ phận thi công, bộ phận thiết kế …v.v.

    III. Một số mẫu thiết kế xây dựng nhà phố đẹp, biệt thự đẹp

    1. Mẫu thiết kế xây dựng nhà phố

     

     D:\0. CÔNG TY SƠN BÌNH\THIẾT KẾ WEB\BÀI VIẾT\HÌNH ẢNH ĐẸP\New folder (3)\Final\04 - 900x1080.jpg04 - 900x1080

     

    Mẫu nhà phố 2 mặt tiền 3 tầng hiện đại tại TP. Thuận An - Bình Dương



     

    08 - 900x1152

     

    Mẫu nhà phố 2 mặt tiền 3 tầng hiện đại tại Quận Bình Tân - TP.HCM

     

     

    01 - 900X1280

     

    Mẫu thiết kế nhà phố 3 tầng tại Quận Củ Chi - TP. HCM

     

     

    03 - 900x938

     

    Mẫu nhà phố 3 tầng hiện đại tại TP. Thủ Đức

     

    02 - 900x1249

     

    Mẫu nhà phố 3 tầng hiện đại tại Thị xã Phú Mỹ - BRVT

     

    05 - 900x1412

     

    Mẫu nhà phố 2 tầng hiện đại tại Thành Phố Vũng Tàu

     

    1. Mẫu thiết kế xây dựng biệt thự đẹp

     

    6 - 900x900

     

    Biệt thự 2 tầng tại Phường Long Trường - TP. Thủ Đức

     

    07 - 900x900

     

    Biệt thự 2 tầng tại Phường Long Trường - TP. Thủ Đức

     

     

    09 - 900x900

     

    Biệt thự  Cổ Điển 2 tầng tại Phường Phước Long - TP. Thủ Đức

     

    10 - 900x1262

     

    Biệt thự  Tân Cổ Điển 3 tầng tại Biên Hòa - Đồng Nai

     

     

    Chia sẻ: